CLUB HOUSE

LOCATION
Ukraine, Lviv
PURPOSE
residential complex
AREA
м²
STATUS
Preliminary Design
YEAR
2023

The clubhouse project was developed as part of a competition for the development of the territory along Zamkova Street in Lviv.

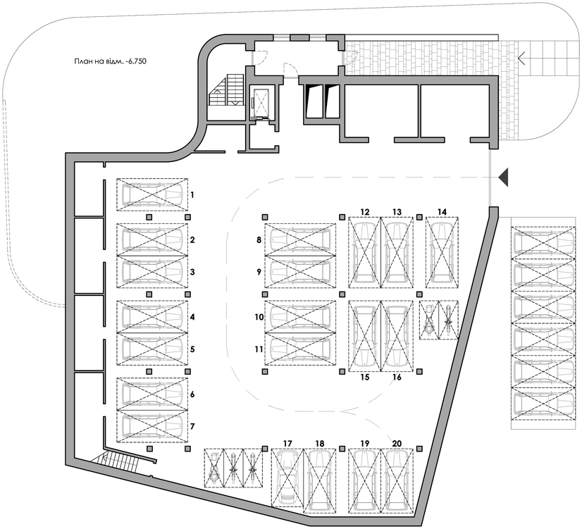
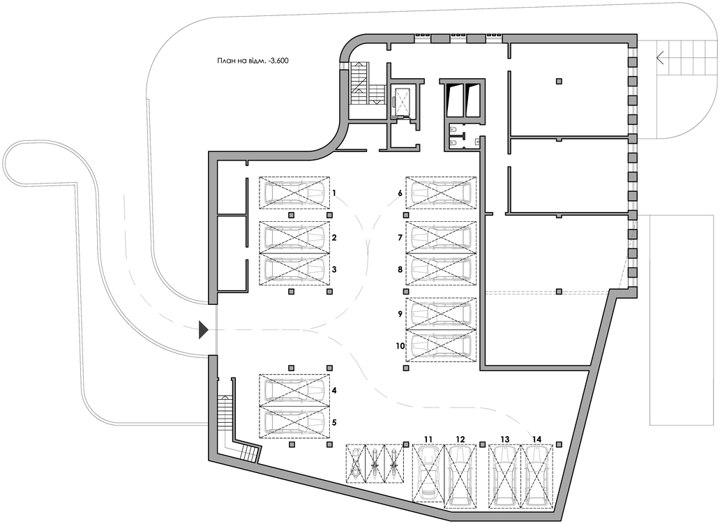
The volume is compactly situated on an allocated site of irregular configuration, which is reflected in the building's geometry. The facade height from Zamkova Street is regulated by normative requirements and does not exceed 15 m.
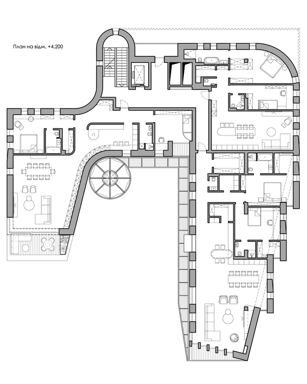
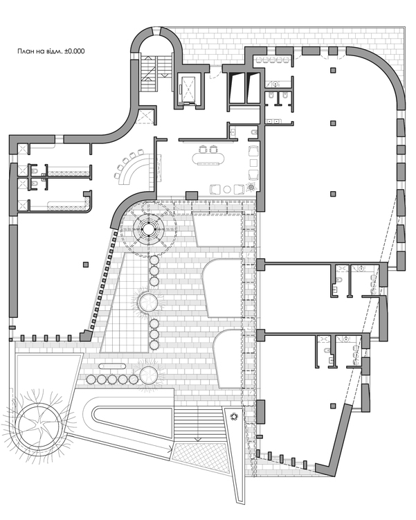
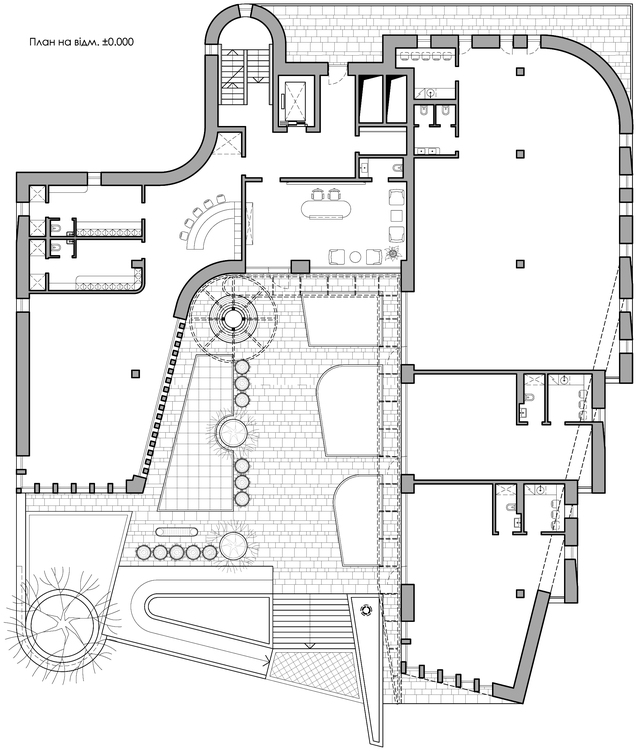
The building has a U-shaped plan configuration and rises in terraces from Zamkova Street, forming an intimate internal courtyard with views of Zamkova Hill. Entrances to the residential complex and commercial premises are organized from the courtyard. To comply with height restrictions, the courtyard plane is lowered by half a floor relative to Zamkova Street level.
In the courtyard space, at the level of the first-floor lintel, a linear pergola structure is arranged, which culminates in an accent pavilion at the entrance to the residential part of the complex.

The design concept is based on creating an architectural image that semantically references traditional, somewhat nostalgic architecture—rounded plastic forms, allusions to tower dominants, brick lattice patterns, and rustication—through the lens of contemporary architectural language.

The streamlined plasticity of the city-facing facades, combined with the greening of terraced ledges, ensures the organic integration of the building volume into the relief of Zamkova Hill's slope.