CLUB HOUSE

МЕСТОПОЛОЖЕНИЕ
Україна, м. Львів
ФУНКЦИЯ
жилой комплекс
ПЛОЩАДЬ
м²
СТАТУС
Эскизный проект
ГОД
2023

Проєкт клубного будинку розроблено в рамках конкурсного проєкту з розвитку території вздовж вулиці Замкової у м. Львові.

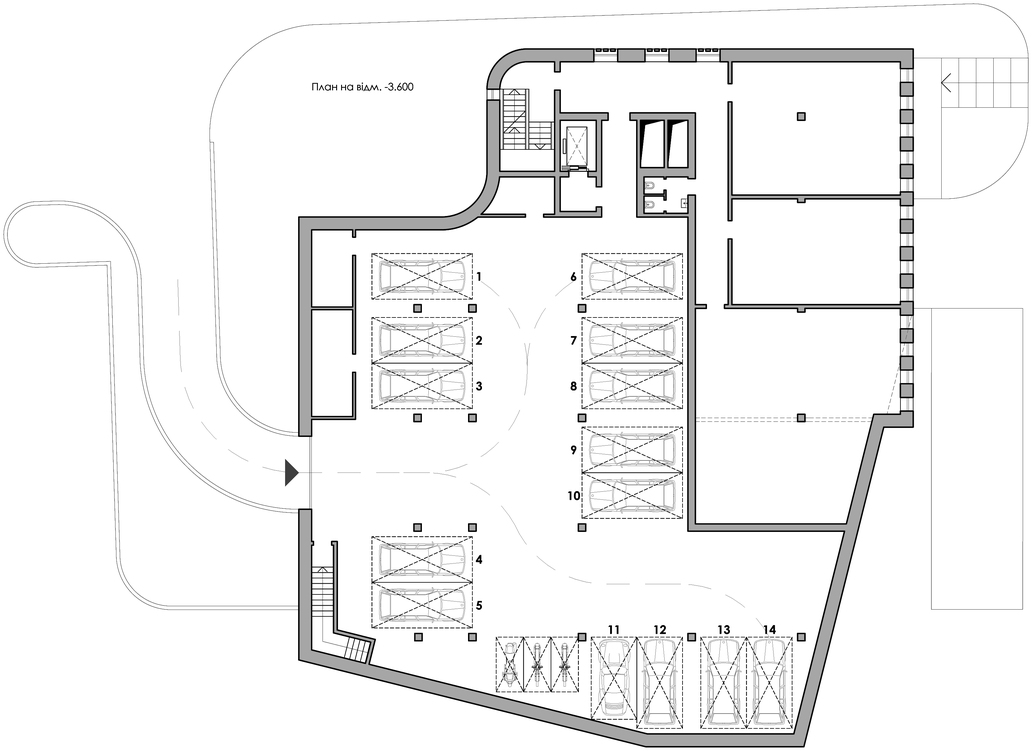
Об'єм компактно розміщено на відведеній ділянці неправильної конфігурації, що знайшло відображення у геометрії будівлі. Висота фасаду з боку вул. Замкової регламентована нормативними вимогами і не перевищує 15 м.
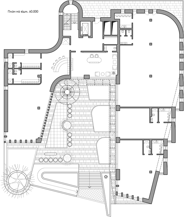
Будівля має П-подібну конфігурацію у плані та піднімається терасами від вул. Замкової, формуючи камерне внутрішнє подвір'я з видом на Замкову гору. Із подвір'я організовано входи до житлового комплексу та комерційних приміщень. Для дотримання висотних обмежень площину подвір'я заглиблено на пів-поверху відносно рівня вул. Замкової.
У просторі подвір'я, на рівні перемички першого поверху, влаштовано лінійну пергольну конструкцію, яка завершується акцентною альтанкою при вході до житлової частини комплексу.

Концепція формоутворення базується на створенні архітектурного образу, що семантично апелює до традиційної, дещо ностальгічної архітектури — заокруглені пластичні форми, алюзії на вежеві домінанти, цегляні ґратчасті патерни та рустування — через призму сучасної архітектурної мови.

Обтічна пластика фасадів, звернених до міста, в поєднанні з озелененням терасованих уступів забезпечують органічну інтеграцію об'єму будівлі у рельєф схилу Замкової гори.